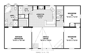
Ranch Open Concept Floor Plans For Small Homes : 97,240 likes · 7,785 talking about this. Posted by bmp-signs Wednesday, March 10, 2021 You may also like :environcolorimgkite Related PostsFaf De Klerk WeightNavi Female Costume AvatarMy Hard Working Man MemeBen Affleck Ana De Armas Height
0 comments